Südpfalzhof
In der Nähe von Landau hat sich im Jahr 2025 eine Projektgruppe zusammengefunden, die im Dorf Essingen (in der Pfalz) einen bestehenden Drei-Seiten-Hof umgestalten möchte.

Wir freuen uns in der Gruppe über neue Mitmacherinnen und Mitmacher. Erreichbar sind wir über die folgende E-Mail-Adresse: pfalz@bauernhofstattaltenheim.de.
Projektstand
Eine Projektgruppe hat sich im Frühjahr 2025 gegründet.
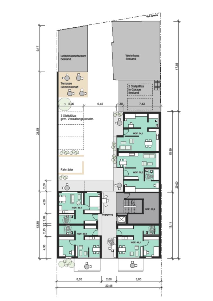
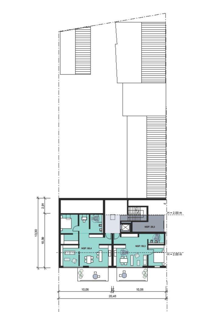
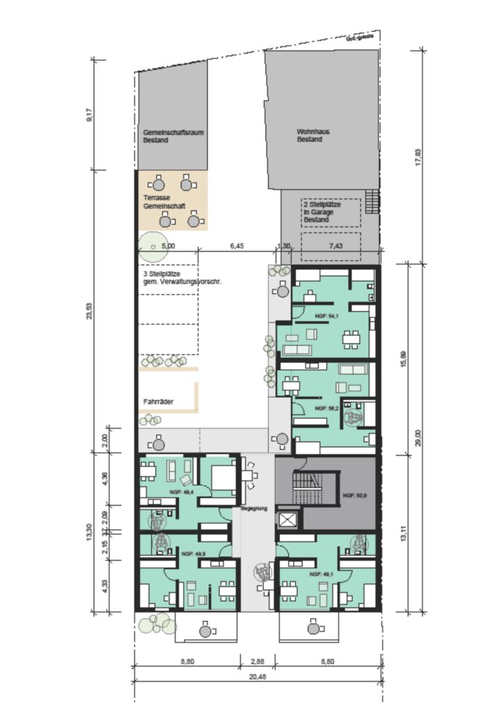
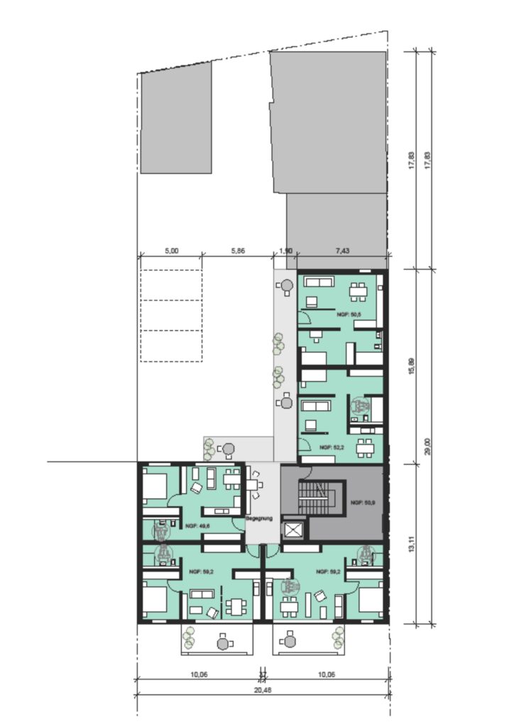
Für die zur Verfügung stehende Immobilie wurde im Jahr 2015 bereits eine Bauvoranfrage gestellt und bewilligt. Die aktuellen Pläne bieten Wohnraum für 12 Appartements und mind. 14 Bewohnerinnen und Bewohner.
Die Bauvoranfrage soll in 2026 erneuert werden, so dass wir zeitnah in die konkretere Planung gehen können.
Architektonische Planungen




Wohnkonzept
Gemeinschaftliches Wohnen im Alter steht bei uns im Vordergrund. Dazu ist geplant, dass die Wohneinheiten barrierefrei sind. Sie sind ausgestattet mit eigenem Bad, separatem Schlafzimmer und Wohn-, Essküche.
Räume, in denen Gemeinschaft gelebt werden kann, sind selbstverständlich vorgesehen. Sie bieten Platz für gemeinsame Mahlzeiten, Aktivitäten und Begegnungen. Sie sollen auch ein Fenster nach außen sein. Das Dorf soll über Veranstaltungen und Angebote mit einbezogen werden.
Ein Mittagstisch für Bewohnende und Gäste ist angedacht.
Der Garten des Wohnprojektes bietet Platz zum Gärtnern, zur Haltung von Hühnern und anderen Aktivitäten.



Finanzielles
Unser Finanzplan wird aktuell erarbeitet.
Dieser beinhaltet die Finanzierung der Immobilie sowie eine Darstellung der Mietkosten und der Kosten für einen Service, der je nach Bedarf in Anspruch genommen werden kann.
Eindrücke aus der Gemeinde Essingen




